GALLERY
PROPERTY DETAIL
Key Details
Sold Price $610,0003.2%
Property Type Manufactured Home
Sub Type Manufactured Homeon Real Property
Listing Status Sold
Purchase Type For Sale
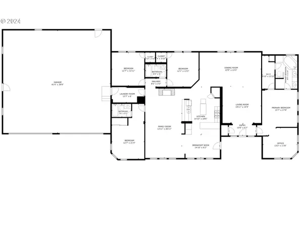
Square Footage 2, 539 sqft
Price per Sqft $240
MLS Listing ID 24003358
Sold Date 12/20/24
Style Stories1
Bedrooms 4
Full Baths 3
HOA Y/N No
Year Built 2003
Annual Tax Amount $4,631
Tax Year 2023
Lot Size 1.520 Acres
Property Sub-Type Manufactured Homeon Real Property
Location
State OR
County Marion
Area _173
Zoning AR
Building
Story 1
Sewer Sand Filtered, Standard Septic
Water Well
Level or Stories 1
Interior
Interior Features Laminate Flooring, Tile Floor, Wallto Wall Carpet
Heating Forced Air, Heat Pump
Cooling Central Air
Appliance Dishwasher
Exterior
Exterior Feature R V Parking
Parking Features Attached
Garage Spaces 4.0
View Territorial
Roof Type Composition
Accessibility GroundLevel, OneLevel
Garage Yes
Schools
Elementary Schools Other
Middle Schools Cascade
High Schools Cascade
Others
Senior Community No
Acceptable Financing Cash, Conventional, FHA, StateGILoan, USDALoan, VALoan
Listing Terms Cash, Conventional, FHA, StateGILoan, USDALoan, VALoan
CONTACT









